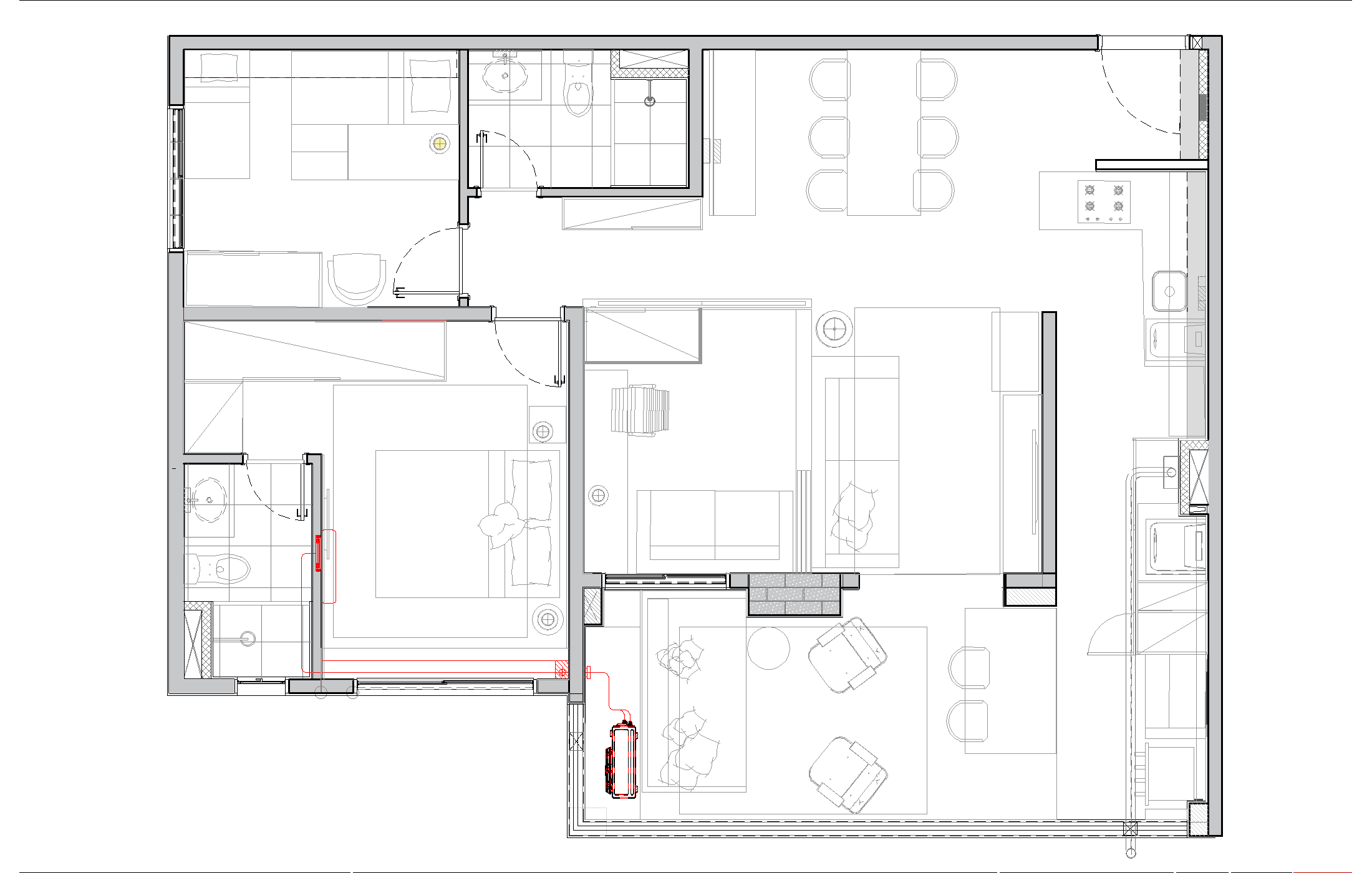
Projeto de Interiores e decoração de apartamento da Cyrela
Local: Cyrela – Lapa
Ano: 2018
Area: 94.00 m²
Arq: Isabel Konder Comparato
Arq. coordenadora: Lygia Watanabe
Colaboradoras: Gabriela Tiemi M. Yokota
Imagens 3D: Lygia Watanabe
Fornecedores de obra:
Marcenaria Mobile Heich.
MDG Reformas
Finalizado: Fevereiro de 2019:
Fotográfo: Wellington Tessaro


































Deixe uma resposta